Casa Pesci
Un Espacio Cultural en La Plata
En el corazón de La Plata, se encuentra Casa Pesci, una joya arquitectónica diseñada por el reconocido arquitecto Rubén Pesci. Aunque menos conocida que otras obras, esta casa es un testimonio de la creatividad y la visión de su creador.
Historia y Diseño
Ubicación: Avenida 53 entre las calles 5 y 6, en pleno centro de la ciudad de La Plata.
Año de Construcción: 1978.
Inspiración: El diseño de Casa Pesci ha sido objeto de estudio en varias universidades de Argentina, incluyendo la Universidad Nacional de La Plata, la Universidad de Buenos Aires y la Universidad de Morón.
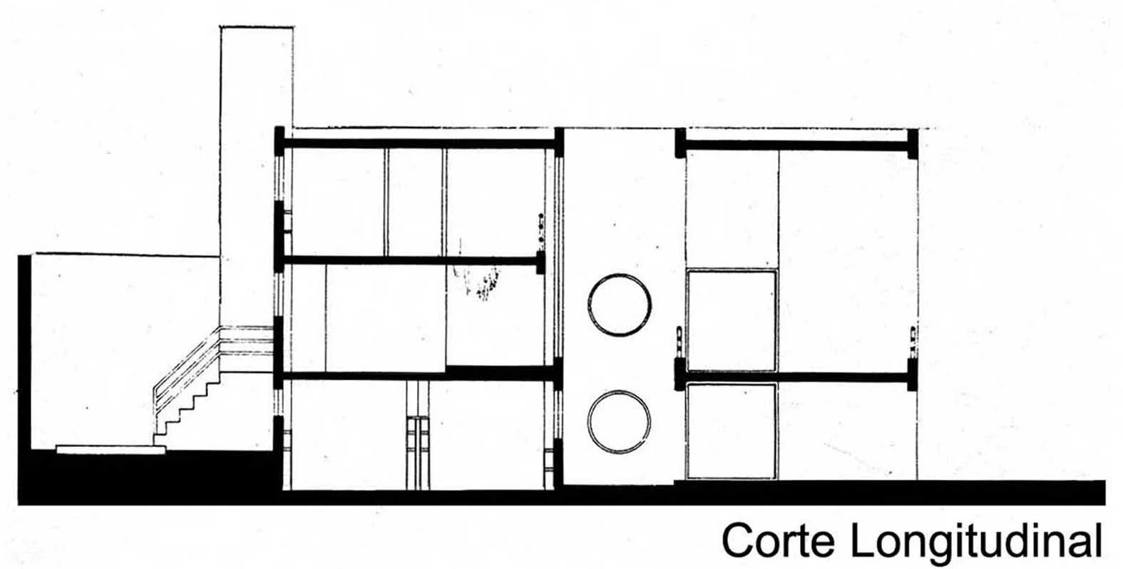
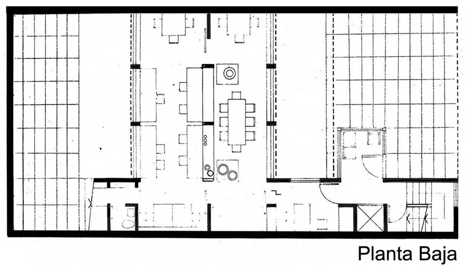
Estilo Arquitectónico: La casa combina elementos modernos con una sensibilidad única. Su fachada minimalista y líneas limpias reflejan la influencia de la arquitectura contemporánea.
Características Destacadas
Conexión con el Entorno: El diseño de los ambientes, se debe a un exhaustivo análisis y comprensión de su contexto urbano, al entendimiento de las relaciones entre la calle y los edificios en La Plata: en el cómo disfrutar del frondoso verde de la ciudad sin ser molestado por las miradas indiscretas y ruido de los coches. La ciudad se convierte en parte de la experiencia arquitectónica.
Luz y Espacio: La distribución interior de la casa permite una abundante entrada de luz natural. Los espacios son amplios y versátiles, lo que facilita la adaptación para diferentes actividades. La terraza en planta primera sobre las cocheras funciona como filtro y marco para los espacios íntimos, que pueden de esta manera pueden tener su cara principal vidriada.
Actualmente, Casa Pesci funciona como vivienda y espacio cultural. Es un lugar donde se celebran exposiciones de arte, charlas, talleres y eventos culturales. La comunidad platense se reúne aquí para apreciar el arte y la creatividad.
Rubén Pesci, arquitecto, urbanista y profesor argentino, destaca por su enfoque sustentable y su legado en la arquitectura latinoamericana. Sus obras, como Casa Pesci, reflejan su visión holística y su compromiso con el bienestar humano y el entorno.
Su influencia perdura, inspirando a las generaciones futuras a considerar la arquitectura como una herramienta para la armonía entre el ser humano y la naturaleza.



