Casa Farnsworth
Historia, diseño y legado de Mies
Diseñada por Ludwig Mies van der Rohe, es un hito en la arquitectura moderna. Ubicada en Plano, Illinois, esta residencia unifamiliar redefine los límites entre interior y exterior de manera audaz.
Arquitecto: Ludwig Mies van der Rohe
Año de Construcción: 1946-1950
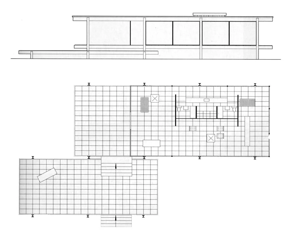
Área construida: 206 m2
Ubicación: Plano, Illinois, USA
Historia y Controversia
Desde su construcción en 1950, la Casa Farnsworth ha sido objeto de debates y análisis. Su minimalismo radical y su enfoque en la simplicidad la convierten en un hito arquitectónico que sigue inspirando a diseñadores y amantes del arte.
Su estructura de acero y vidrio, aparentemente frágil, desafía las nociones tradicionales de vivienda. Mies van der Rohe diseñó espacios diáfanos, sin divisiones internas, creando una fluidez entre habitaciones y permitiendo que la luz penetre sin obstáculos.
Sin embargo, esta transparencia también generó controversias: ¿Es una casa o una escultura? ¿Cómo se vive en ella sin perder la privacidad? La Casa Farnsworth sigue siendo un enigma, un lugar donde la materialidad y la esencia se entrelazan en una danza etérea.
Transparencia y Elegancia
La Casa Farnsworth se eleva sobre el río Fox, su estructura metálica y sus paredes de vidrio crean una fusión perfecta con el paisaje circundante. Cada espacio ofrece vistas panorámicas, invitando a la naturaleza a formar parte de la experiencia habitable. La luz del sol se filtra a través de los paneles de vidrio, pintando patrones cambiantes en las superficies interiores.
Espacios Diáfanos
Mies van der Rohe desafió las convenciones al diseñar espacios sin divisiones internas. La Casa Farnsworth es un lienzo en blanco donde los límites entre sala de estar, dormitorio y cocina se desvanecen. La fluidez y la simplicidad reinan, permitiendo que los habitantes se muevan libremente y experimenten la arquitectura en su forma más pura.
Sobre el Arquitecto: Ludwig Mies van der Rohe
Nacido en Aquisgrán en 1886 y fallecido en Chicago en 1969, fue un arquitecto y diseñador industrial germano-estadounidense. Junto a Walter Gropius, Frank Lloyd Wright y Le Corbusier, es reconocido como uno de los pioneros de la arquitectura moderna. Fue el último director de la Bauhaus y dejó un legado duradero expresado en sus famosas frases: “menos es más” y “Dios está en los detalles”.
Galeria de imagenes




