Casa del puente
Un icono de la arquitectura moderna en Mar del Plata
La Casa del Puente o Casa sobre el Arroyo es una de las arquitecturas más reconocidas del siglo XX a nivel mundial. Fue diseñada y construida entre 1943 y 1945 por los arquitectos argentinos Amancio Williams y Delfina Galvez Bunge, respondiendo al pedido de Alberto Williams, padre de Amancio
La casa se ubica en un terreno de dos hectáreas en Mar del Plata, atravesado por el arroyo Las Chacras, que le da su nombre. En este terrero dividido en dos, la casa concreta la unión de las dos partes del mismo, localizándose sobre su accidente principal. Allí, por contraposición, está colocada la obra humana.
La estructura principal de la casa es un puente de hormigón armado que se apoya sobre dos pilares y se eleva sobre el arroyo, creando una relación armónica con el paisaje natural.
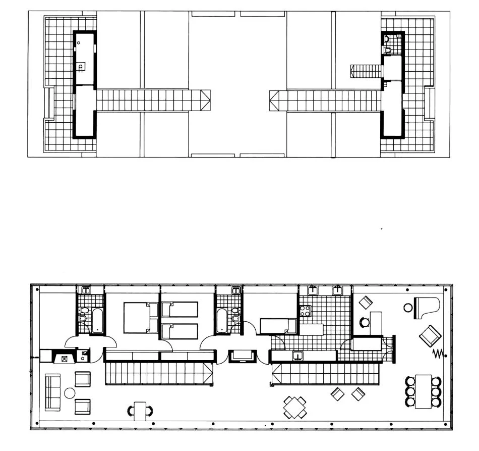
Su interior, de tipología lineal, presenta ambientes desarrollados en torno a las escaleras que dividen los espacios públicos de los privados y de servicio, haciendo referencia a la típica “casa chorizo”, vivienda tradicional de nuestro país.
La estructura, permite que todos los espacios interiores se relacionen con el contexto natural exterior a partir de las ventanas corridas que se posicionan en todo el perímetro horizontal de la vivienda.
Los espacios se dividen con placas de madera que permiten una gran flexibilidad y adaptabilidad. Además, tiene una cubierta-terraza que se integra con el entorno y ofrece una vista panorámica.
La casa es considerada una obra maestra del movimiento moderno en Argentina y en Latinoamérica, y ha sido declarada Monumento Histórico Nacional, Patrimonio Cultural de la Provincia de Buenos Aires y de Interés Patrimonial, Cultural y Natural por la Municipalidad de General Pueyrredón.
Actualmente, la casa funciona como un museo de sitio, donde se pueden apreciar los detalles de su diseño, su historia y su valor cultural. La casa ha sufrido varios actos de vandalismo y deterioro, pero ha sido restaurada y conservada gracias al esfuerzo de diversas instituciones y personas.
Amancio Williams nació y murió en Buenos Aires (1913 – 1989). Casado con la arquitecta Delfina Gálvez Bunge, fue un exponente del Movimiento Moderno Argentino, considerado uno de los arquitectos más importantes de la primera mitad del siglo xx. Trabajaron en varios proyectos juntos pero especificamente en esta casa, Amancio se encargó del diseño y la dirección de la obra, tanto en el aspecto arquitectónico como en el constructivo. Por su parte, Delfina Gálvez Bunge se ocupó del mobiliario interior y de la relación con la jardinería.
Galeria de imagenes




