Casa Curutchet
La obra maestra de Le Corbusier en América del Sur y Patrimonio de la Humanidad
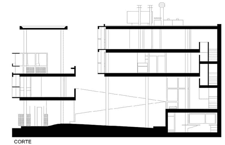
La Casa Curutchet es una obra del arquitecto francés Le Corbusier, construida en La Plata, Argentina, entre 1949 y 1955, por encargo del cirujano Pedro Domingo Curutchet.
Es la única obra de Le Corbusier en América del Sur y muestra su visión de la arquitectura moderna, plasmando los principios establecidos por él mismo como la planta libre, la terraza jardín, los pilotis, los ventanales horizontales y la fachada libre.
La dirección técnica de la obra estuvo a cargo de varios arquitectos e ingenieros argentinos, destacandose Amancio Williams, que introdujeron algunos cambios en el proyecto original. La casa fue declarada monumento nacional en 1987 y actualmente es la sede del Colegio de Arquitectos de la Provincia de Buenos Aires (CAPBA). Se puede visitar con cita previa.
Al diseñarla, Le Corbusier tuvo en cuenta las necesidades de sus futuros habitantes y dividió la casa en dos volúmenes claramente separados: la zona de consultorio al frente y la zona de la vivienda atrás, ambas articuladas por el patio y la rampa de acceso.
Esta rampa se encuentra enfrentada a la puerta de entrada, organizando la circulación interior en la forma de una promenade ascendente. La aparición de la rampa como espacio inducido obliga a recorrer la casa de manera vertical, ofreciendo un interesante juego de perspectivas, respetando el entorno y buscando la continuidad.
Otro concepto aplicado en esta obra, es el sistema de medidas creado por el arquitecto Le Corbusier, que se basa en las proporciones humanas y la sección áurea. “El Modulor” busca la armonía y el equilibrio entre la arquitectura y el hombre, y se aplica tanto al diseño funcional como al estético.
La casa Curutchet es una obra singular y original de Le Corbusier, que se diferencia de sus anteriores trabajos. Respeta y transforma su entorno, combinando lo antiguo y lo moderno, lo dado y lo creado, lo racional y lo orgánico. Aprovecha el espacio y los elementos existentes, como el árbol, las medianeras y el parque, y crea nuevos espacios, como la terraza y el patio. La casa se basa en el contraste entre la estructura ortogonal y el uso libre de los muros.
Esta obra tiene una importancia única porque sigue siendo relevante y útil para los problemas actuales de la arquitectura. Quizás, lo más destacable sea su capacidad de trascender el tiempo.
Galeria de imagenes




